Sieben auf einen Streich
Bauherrschaft: privat
Ort: Ansbach
NutzungWohnen
LeistungsumfangArchitektur (LPH 1 - 4) Statik, Bauphysik
Statusin Ausführung
BGF: 185.00 ​​​​​​​
NachhaltigkeitsaspekteEmissionsfreies Bauen, integrale Planung, Nutzungsneutralität,Kreislaufwirtschaft, 
DGNB Platin Zertifizierung + QNG Plus​​​​​​​​​​​​​​
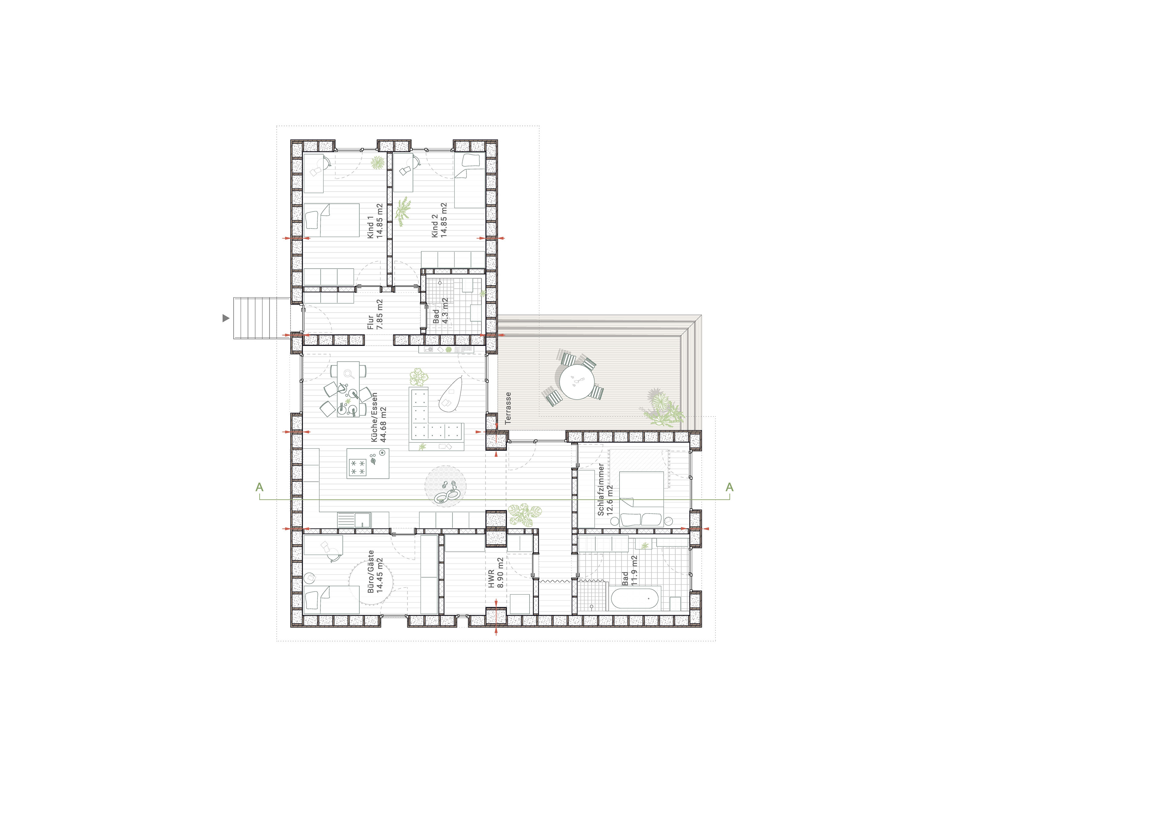
Für uns bedeutet Nachhaltigkeit mehr als nur ökologisches Bauen. Es geht um zukunftsfähige, flexible Konzepte, die sich an die Lebensrealitäten ihrer Bewohner:innen anpassen. Unser Stroh-Modul-Haus ist ein aufgeständertes Gebäude, das aus selbsttragenden Holzmodulen besteht. Diese Module können jederzeit ergänzt oder entfernt werden – je nach Lebensphase und Raumbedarf.
Die sieben Module werden in der benachbarten Zimmerei (nur 100 Meter entfernt) gefertigt und mit regionalen Strohballen gedämmt. Trotz der industriellen Umgebung sorgt die gezielte Positionierung des Hauses auf dem Grundstück für hohe Wohnqualität: mit durchdachtem Schallschutz, optimalen Blickbeziehungen und idealer Ausrichtung.
Die Bauherrschaft wünschte sich ein rundum nachhaltiges Gebäude – daher haben wir komplett auf Kunststoffe und Folien verzichtet und stattdessen auf traditionelle Bauweisen gesetzt. Die Außenwände sind beidseitig mit Lehm und Kalk verputzt, der Fußboden reversibel geschichtet, und das weit überstehende Dach schützt die Konstruktion vor Witterung und sommerlicher Überhitzung.
Das Besondere: Wenn die Kinder ausziehen, können einzelne Module entfernt und als Tiny Houses an einem anderen Ort weitergenutzt werden. Eine Investition in die Zukunft – für heute und für die nächste Generation.
Seitenanfang